15.01.2026

Die Bibliothek als Community Hub: Wie lassen sich die Bedürfnisse der Zielgruppe in einem einzigen Raum vereinen?

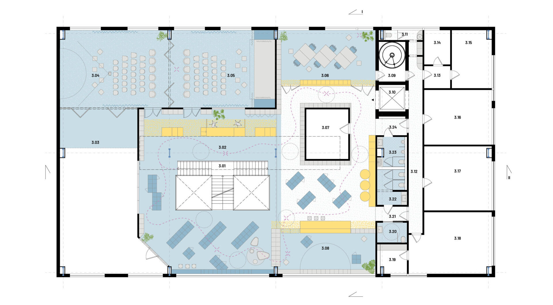
Die Regionale Bibliothek in Žilina wurde im Zuge mehrerer Architekturwettbewerbe schrittweise über zwei Geschoße hinweg revitalisiert und zu einem vollwertigen Community Hub weiterentwickelt, in dem die klassische Buchausleihe nur mehr eine von vielen angebotenen Funktionen darstellt.

Der prämierte Gewinner-Entwurf von Delta Pods Architects / DELTA Group SK für den Bereich der Kinder- und Jugendliteratur greift diesen Transformationsprozess konsequent auf und reagiert gezielt auf die erweiterten Bedürfnisse der jeweiligen Nutzer:innengruppe. Durch die Öffnung der Raumstruktur, eine verbesserte Orientierung sowie eine klare funktionale Zonierung wird die Zugänglichkeit erhöht und die Aufenthaltsqualität nachhaltig gesteigert.

Im Laufe der Jahre hat die Bibliothek mehrere Umbau- und Adaptierungsphasen durchlaufen, die den Betrieb teilweise optimierten, in einzelnen Bereichen jedoch auch neue Komplexitäten mit sich brachten. Selbst die Mitarbeiter:innen verstehen die Bibliothek heute als lebendigen Organismus – als dynamisches Gebilde, das sich kontinuierlich mit gesellschaftlichen Entwicklungen und aktuellen Nutzungstrends weiterentwickelt. Längst ist sie nicht mehr ausschließlich ein Ort der Stille oder ein Rückzugsraum für eine akademische Elite.

Tag für Tag wird die Bibliothek von Menschen unterschiedlichster Altersgruppen, Hintergründe und Motivationen belebt: Sie kommen zum Recherchieren, Lernen, Spielen oder schlicht zum Verweilen – oftmals ohne konkretes Ziel. Das Nutzungsspektrum reicht von älteren Besucher:innen mit eingeschränkter Mobilität bis hin zu jungen, vernetzten Studierenden, die mit Kopfhörern arbeiten und ihre Social-Media-Kontakte spontan auf Whiteboards hinterlassen.

Copyright: Delta Pods Architects / DELTA Group SK